Edificio in vendita

Trattativa riservata
Corso Italia, In, Saviano

Panoramica

  • 46669
  • ID Proprietà
  • 10
  • Bagni
  • 1,000 m2
  • Superficie calpestabile

Indirizzo: Corso Italia
Provincia:
Città:
Stato / Paese:
CAP: 80039

Descrizione

Saviano – Corso Italia 118

Proponiamo in vendita un intero edificio a destinazione commerciale/residenziale, caratterizzato da ampie metrature e grande flessibilità di utilizzo, ideale per molteplici soluzioni imprenditoriali o residenziali.
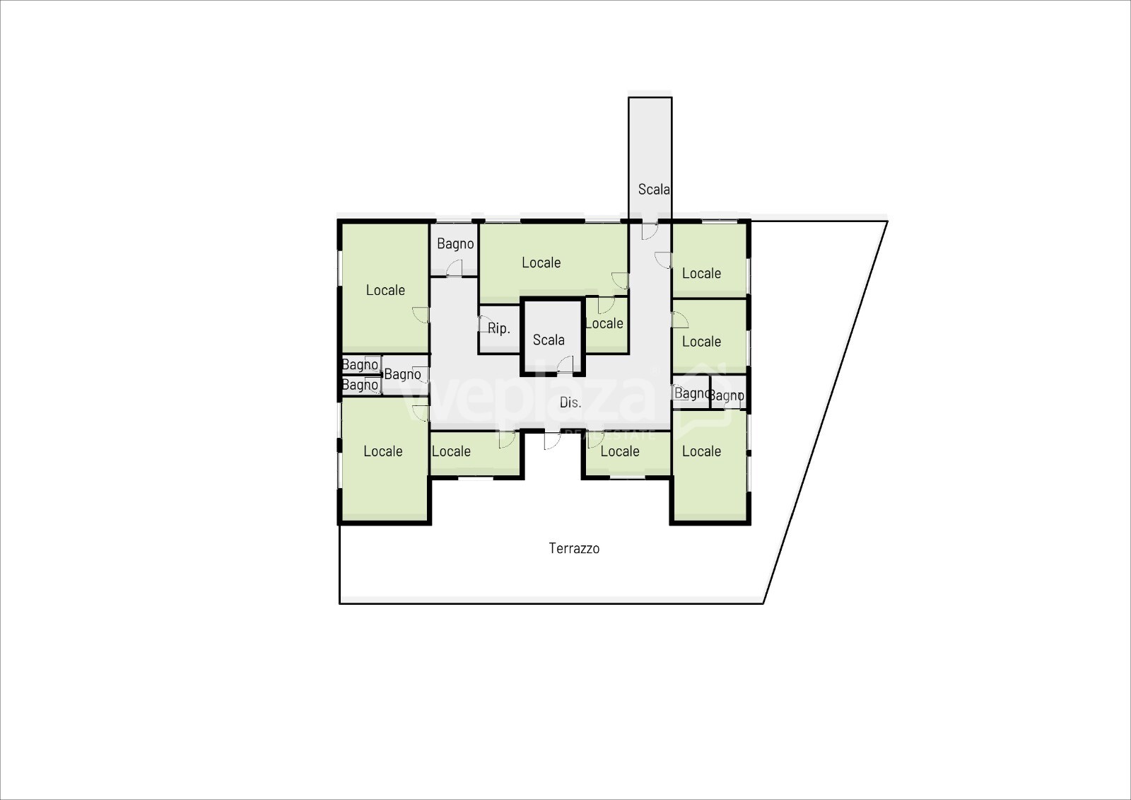
La struttura si sviluppa su 4 livelli (piano S1, piano terra, primo e secondo), per una superficie di circa 250 mq per piano, per un totale di circa 1.000 mq interni, ed è servita da un’area esterna di circa 1.000 mq, oltre a un terrazzo di copertura di circa 250 mq.

Caratteristiche principali:

– Circa 250 mq per piano, per un totale di circa 1.000 mq interni.

– Area esterna di circa 1.000 mq, ideale per parcheggi, spazi operativi o aree verdi.

– Terrazzo di copertura di circa 250 mq, ulteriore spazio sfruttabile.

– Ambienti ampi e facilmente modulabili, grazie alla struttura regolare.

– Immobile utilizzato per circa 25 anni come istituto scolastico.

– Possibilità di cambio destinazione in civile abitazione, ampliando le potenzialità d’uso.

Una soluzione ideale per chi cerca un immobile di ampia metratura da destinare a strutture ricettive, attività direzionali, scuole, centri polifunzionali o residenze plurifamiliari.

Contattaci ora per ricevere maggiori informazioni o per organizzare una visita.
I consulenti del Gruppo Weplaza sono a tua disposizione per una consulenza personalizzata e professionale, aiutandoti a valorizzare al meglio questo immobile.
Alcune immagini sono state elaborate digitalmente a scopo illustrativo e potrebbero non rappresentare fedelmente lo stato attuale dell’immobile.

 

Listing Id: 2026-42971
Prezzo: Trattativa riservata
Superficie calpestabile: 1,000 m2
Dimensioni proprietà (mq): 1,400 m2
Bagni: 10

Altre Caratteristiche
Adatto a Disabili
Cantina
Copertura Terrazzo
Giardino
Termoautonomo

Trasporto
Supermercati
Scuole
Ristoranti
Farmacie
Ospedali

Planimetria 1
Planimetria 2

Gio 30 Apr
Ven 01 Mag
Sab 02 Mag
Dom 03 Mag
Lun 04 Mag
Mar 05 Mag
Mer 06 Mag
Gio 07 Mag
Ven 08 Mag
Sab 09 Mag
Di persona
Via Video

Contattami

Pianifica appuntamento

Gio 30 Apr
Ven 01 Mag
Sab 02 Mag
Dom 03 Mag
Lun 04 Mag
Mar 05 Mag
Mer 06 Mag
Gio 07 Mag
Ven 08 Mag
Sab 09 Mag
Di persona
Via Video
Le tue informazioni
  • Ricerca avanzata

  • Altre città

Confronto immobili

Ciro De Crescenzo